Escuela de
Música en
el Raval.
Barcelona
proyecto académico 2007
Dani Granados
+ Gustavo Vitores
18 / 25
Next >
< Previous
Antes que fuera concebido el proyecto, todas las cosas tenían el mismo aspecto, una masa confusa y sin forma, un peso muerto en el cual, sin embargo, estaban las semillas de las cosas. Como el Raval y la escuela de música estaban mezclados, el edificio no estaba definido, ni el barrio completado. Se puso fin al desorden, separando los espacios servidos de los servidores y al Raval de ambos dos. Luego, se dispuso mejor lo servido y distribuyó las partes del programa, definiendo el auditorio como elemento sustentador de la escuela. El entorno se esclareció y la actividad fue apareciendo. Los curiosos tomaron posesión del espacio dinámico de la escuela, los ciudadanos de su espacio libre y los músicos se apropiaron de las aulas.
(Texto adaptado a La caja de Pandora.)
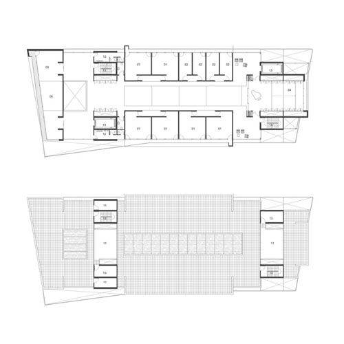
En uno de los diversos y sucesivos vacíos que se generan en el seno de un centro histórico se halla la oportunidad de ubicar una escuela de música que por su carga funcional rebasaría el limitado uso del barrio. Este sería el caso de la Escuela de Música del Raval. En un contexto de sedimentación y transcurso histórico la escuela se formaliza reconociendo las alineaciones y gestuando con el fin de actuar como elemento presencial de la plaza que lo acompaña, aún sin la voluntad de sobreponerse al pintoresco ritmo de fachadas existentes.
El edificio es sincero al mostrarse. Posee una piel invisible que envuelve un vacío fluctuante en su interior. La ligereza del espacio se contiene por la densidad del área docente, que desde su posición pesa sobre el frágil zócalo vidriado a doble altura. Sin embargo, este último cuerpo se oculta tras un velo metálico que lo insinúa en la medida que la reclusión del uso así como la orientación lo establece.
El programa queda conexo al entregarse y participar del espacio vacío que atraviesa al edificio en el volumen más opaco y lo abraza en el más permeable. La continuidad de éste hace imposible percibirlo en su conjunto y enriquece con visuales la constante percepción de la dinámica del centro de música. Este vacío interior se apoya en los dos accesos de la escuela, el principal cerca de la calle St. Pau y el secundario en el otro extremo, generando así dobles y triples espacios. La planta baja muestra al auditorio que situándose a doble altura frente al muro de vidrio, es visible en el perímetro rasante de la escuela.
En el angosto cruce de la calle St. Pau con la calle Espalter, y sobre una cafetería que mostrándose al exterior revitaliza la dinámica del contexto, se encuentra otro volumen. Éste cuelga a modo de prolongación del cuerpo docente y alberga la administración así como la biblioteca en su nivel superior. De esta manera el programa queda sedimentado según la proximidad de su uso al incesante movimiento urbano y en el mismo criterio también se abre a los ojos del contexto. El resultado: un edificio sincero al mostrarse, neutro por su continuidad, activo en el interior, participativo en el exterior, luminoso de día y luminoso de noche, difuminado en el contexto, variante de aspecto al transcurso del tiempo, y por último, de composición y distribución sencilla.
proyecto académico 2006
Gustavo Vitores
5 / 20
Next >
< Previous
+ info
Espacio público/
Equipamiento
6.000m2
+ exhibitions
> Exposición LST4 en la facultad de Arquitectura ETSALS de Barcelona. 2007
+ publications
Libro “LST4 Anuari Taller 4t”
