PSIS Salesianos
Pamplona
concurso 2014
Gustavo Vitores
1 / 14
Next >
< Previous
La parcela...
...de Salesianos se sitúa en el II ensanche de Pamplona, ocupando dos manzanas tipo, en el límite de la trama de cuadrícula urbana, conectando de forma tangencial con cuatro calles y de forma directa con la calle Teobaldos. Las edificaciones existentes, en esta gran manzana, suponen una barrera urbana que reduce la relación entre ensanche y parque de la Media Luna, que se percibe en las inmediaciones y sobre todo desde la calle Teobaldos, careciendo de un frente significativo como frente de calle. El emplazamiento en el límite entre la trama del ensanche con el parque-paseo de las murallas y la trama urbana de viviendas unifamiliares, convierten este área de proyecto en zona de paso y un punto de bajo nivel de atracción ciudadana.
La posible continuidad de la trama del ensanche en el solar, formando dos manzanas tipo, prolonga la calle Teobaldos, hasta el frente de casas unifamiliares de la calle Media Luna, creando una nueva barrera urbana similar a la existente con Salesianos, y dejando como frente del eje una vivienda unifamiliar.
La edificabilidad máxima da la parcela, se traduce en una densidad volumétrica tipo del ensanche, siguiendo una posible ordenación tipo del ensanche de la parcela en dos manzanas, alineación perimetral... reduce el interés en este punto urbano.
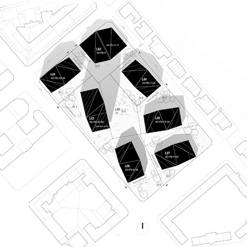
Propuesta de ordenación urbana
1_”Nueva conexión en Y”, bifurcando la calle Teobaldos hacia los accesos del parque de la Media Luna en las calles Aralar y San Fermín, conformando tres manzanas, y conservando el plano secundario de las viviendas unifamiliares en la calle Media Luna.
2_”Nueva alineación y dirección” que plasma la Y, mediante ejes del entorno cercano. Emilio Arrieta y Fuerte San Bartolomé, Av. Baja Navarra, y Teobaldos, marcan las directrices principales de división. La trama del ensanche y San Bartolomé, marcan las directrices secundarias que retranquean los puntos de acceso y dilatan las calles tangentes en el solar.
3_Crear “nuevo centro” de la ciudad, con una disposición volumétrica que genere espacios públicos irregulares y atractivos con comercios como en el Casco Viejo, menor ocupación en planta en concepción a la trama de volúmenes disgregados de viviendas unifamiliares que permite nuevas visuales y permeabilidad urbana, y la densidad volumétrica del ensanche.
4_"Nuevas referencias urbanas". Proponiendo uno de los volúmenes como torre de 82m, siendo una Referencia Visual en la ciudad, siendo un nuevo frente en la calle Teobaldos y actuando de umbral entre esta y el solar con paso libre en planta baja; Una plaza-calle como Referencia Espacio Público, que cierra el sistema de espacios públicos entre el eje de Carlos III (Plaza del Castillo y Conde de Rodezno), el eje N.Villoslada-Teobaldos (Plaza de los Fueros y la nueva Plaza), y su intersección (Plaza de Merindades); El Centro Cívico se convierte en Referencia Espacial en la nueva plaza, umbral entre el solar y el paseo de las Murallas, con paso libre en planta baja.
+ info
Ordenación Urbana
58.800m2
+ awards
> Finalist Prize
+ client
Gobierno de Navarra
Ayuntamiento de Pamplona
