proyecto final carrera 2009

Gustavo Vitores

Schule

der Architektur

in Zürich

+ info

Equipamiento

11.000m2

 

+ awards

> Accésit_

Muestra de PFCs de la XI Bienal Española de Arquitectura y Urbanismo. 2011

> Primer Premio mes Febrero y Finalista_ Premios HIC Arquitectura. 2012

 

+ exhibitions

> Exposición PFCs premiados de la BEAU XI por las escuelas de arquitectura de España. 2012

 

+ lectures

> Ponencia Universidad de Arquitectura de Alcalá de Henares. 2011

 

+ publications

hicarquitectura.com

afasiaarq.blogspot.com

arquitecturabeta.com

La Escuela de Arquitectura en Zurich se sitúa en el distrito de Langstrasse en un solar de gran superficie, donde destaca la presencia del edificio Zeughausareal...

...como una pieza alargada controlando y dividiendo en dos el espacio libre en toda su anchura (185m). El edificio supone una barrera urbana visible unicamente desde el solar, que reduce de relación entre tramas y espacios del entorno, y espacios libres del solar (Norte y Sur, de diferente carácter). El espacio libre Sur (parque abierto) permite la relación entre el mismo entorno, las fachadas de los edificios son visibles en todo momento y las calles que conectan se empapan de este gran espacio. El espacio libre Norte (parque limitado) se cierra en si mismo, porque los accesos a este parque no conectan directamente con las calles del entorno limitando la conexión entre trama urbana-espacio libre, creando una relación cerrada entre los edificio, que unicamente se abre en el pasage Kräuelgasse, donde su profundidad de conexión es de una isla de la trama.

Rotwandstrasse, es la calle más importante que interactua en el solar, funciona como eje de conexión entre diferentes puntos urbano: el parque sur del solar, Zeughausareal cuya alineación se debe a este eje, el parque de la Iglesia de St. Jakobs, el antiguo edificio Bezirksgebäude, y la importante via Badenerstrasse. Esta calle se conecta con el espacio libre Sur continuando su visual hacia las fachadas de las edificaciones del parque, teniendo relación tangencial con Zeughausareal, y reforzando la barrera urbana.

La dirección de las piezas existentes del solar esta marcada desde la orilla opuesta del rio Shil, siendo todas las piezas paralelas a excepción de Zeughausareal que toma la dirección de Rotwandstrasse. Existe un eje de conexión virtual que conecta estas piezas siendo eje de simetria de los edificios de la parte sur (Alte Kaserne), los edificios de la orilla opuesta y la pasarela sobre el rio, y marca uno de los accesos de la parte norte del solar en su lado izquierdo.

El uso y la circulación del solar viene condicionado por varios factores: la barrera espacial que supone Zeughausareal y por el pequeño paso intermedio que existe, la barrera urbana que supone la red de ferrocarril al Norte, en la parte Noreste del emplazamiento está la Estación Central Hauptbahnhof, el edifico de correos Sihlpost, y diferentes puntos de uso diario de la ciudad, y el propio distrito Langstrasse que se extiende hacia el Este; hace destacar una senda diagonal en el parque que marca la tendencia circulatoria principal en ese espacio.

La propuesta urbanística: 1_”mantener el carácter de dominio sobre el espacio Libre”, completando la anchura total del solar, y respetando la doble linea de árboles existentes; 2_”nueva alineación y dirección de la propuesta” mediante un eje director de proyecto perpendicular al existente entre antiguas edificaciones del solar provocando una nueva conexión entre espacios libres y Rotwandstrasse, que aumenta la profundidad de relación entre entorno y espacio libre Norte, y crea un punto de referencia visual en la calle; 3_crear “permeabilidad en planta baja” entre el espacio norte, sur y entorno, focalizando el espacio en función de el uso peatonal; 4_dar “movimiento al edificio”, produciendo el volumen en función del espacio libre analizado y la trama urbana del eje Rotwandstrasse en sus diferentes niveles, conformando un paisaje de volúmenes para tener referencia del edifico dentro del solar.

Propuesta Urbanística: carácter de dominio, alineación y dirección, permeabilidad, movimiento

En base a la propuesta urbanística y el programa del edificio, se propone un edificio formado por tres volúmenes lineales curvilíneos, partiendo de la nueva alineación y conformándose dos de los volúmenes en función de la trama urbana del eje de Rotwandstrasse, dejando el tercero como elemento de conexión.

La propuesta de proyecto, en base a la propuesta urbanística y el programa del edificio, parte de la necesidad de crear relaciones diferentes en varios niveles con el entorno. “La idea es crear una envolvente mediante una trazada continua o Cinta, como elemento de orden entre el volumen del edificio y las diferentes necesidades urbanísticas con el entorno” . Se desarrolla tres niveles sobre rasante: planta baja (zócalo), planta 1 y planta 2 (ritmo), que respetan la altura de los edificios del espacio norte.

“La idea es crear una envolvente mediante una trazada continua o Cinta, como elemento de orden entre el volumen del edificio y las diferentes necesidades urbanísticas con el entorno”

La planta baja busca la permeabilidad entre espacios con un paso importante que ocupa la planta baja de dos volúmenes desde Rotwandstrasse, (se obtiene un punto de chaflán que crea una relación tangencial con el espacio libre sur bajo el acceso y una relación perpendicular con el espacio libre norte bajo el aulario). Permite crear profundidad de campo entre pilares y árboles.

El programa de la escuela se propone en dos volúmenes (aulario, y área administrativa-cultural), conformando el edificio a nivel formal en dos geometrías conectadas por un tercer volumen, adquiriendo un carácter curvilíneo, consiguiendo movimiento del edificio sobre sí mismo.

Bajo el elemento puente se producen los dos accesos al edifico, (aulario, y auditorio y bar-restaurante, pudiendo funcionar este paquete de programa de forma independiente).

El edificio se desarrolla bajo una fachada de sentido vertical, (que marca el ritmo y la continuidad sinuosa de la forma, convirtiéndose en elemento regulador en las diferentes partes del proyecto), y apoyándose en las diferentes plantas.

Por cualquier lado que se mire, el edificio siempre ofrece aspectos diferentes, y sin embargo es una forma continua de fachada, una totalidad fluida.

La idea de uso de la escuela es fomentar el diálogo entre alumnos, y es por ello que el espacio de circulación adquiere una gran importancia con un gran espacio corazón del proyecto (exposiciones-hall), al que le salen arterias de circulación, hasta llegar a espacios de respiración. En el aulario la circulación se produce de forma continua conectando los pasillos de circulación de los dos niveles con escaleras (abiertas y cerradas) de una sola dirección, produciéndose circulaciones en forma de ocho inclinados.

Las escaleras son elementos transportadores, sales de la planta hacia la escalera, entrando en una atmósfera cerrada horizontalmente (escalera cerrada) y abierta cenitalmente (escalera abierta) para salir de ella y aparecer en otro espacio, otro nivel, reforzando la idea de niveles.

Los diferentes partes del programa se agrupan en paquetes para crear espacios burbuja o de respiración debido a la gran longitud del edificio dando profundidad a la composición de fachada. Esta fachada interior es de listones de madera con tonalidades de color diferentes en cada paquete para crear referencia espacial dentro del edificio. Esta agrupación en paquetes permite simplificar la organización de las instalaciones del edifico, existiendo en cada paquete un núcleo de instalaciones vertical junto a una escalera de incendios que sirve también como referencia espacial y distribuyen las instalaciones del edificio por falsos techos y suelos técnicos. Los paquetes están formados por un sistema de piezas que se repiten y combinan en función de la necesidad del paquete. Las esquinas del edificio están achaflanadas con diferentes radios de giro para dar fluidez a la circulación y para difuminar las esquinas en composición de telón de fondo de la fachada.

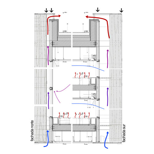
La fachada es un ritmo continuo de lamas verticales de madera microlaminada y doble piel de vidrio, modificándose en función de la orientación, dejando que el programa, la circulación, y la estructura sean los elementos que marcan la percepción exterior. Como usuario en movimiento, desde el interior, la vista es tangente a la fachada y se centra en el horizonte de las aulas. En posición estática, desde el interior, el entorno es el protagonista. El vidrio por el interior de la lama enfatiza la percepción interior en movimiento, ayudándose también del reflejo y permite ver de forma perpendicular.

Las lamas de madera microlaminada tienen tres funciones: ‘constructiva’ sujeción de la capa exterior de vidrio que sufre las acciones externas dando rigidez al cerramiento, ‘estética’ dando una imagen conjunta y elegante al edificio, y ‘funcional’ como respuesta a la acción solar sobretodo en épocas estivales.