Viviendas
Oficinas en
Paseo de
Gracia.
Barcelona
proyecto académico 2005
Gustavo Vitores
21 / 27
Next >
< Previous
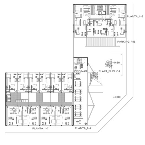
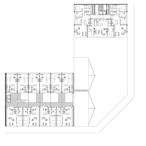
El proyecto de viviendas para 400 personas, se desarrolla en el extremo este de una illa del ensanche de Barcelona, contigua a Paseig de Gracia.
El conjunto se conforma de tres volúmenes jerarquizados tanto en altura como en volumen, destacando una pieza en L invertida con un gran voladizo...
...que se eleva sobre los edificios existentes para obtener un conjunto de viviendas con las mejores condiciones de entorno (que no se podrían llevar a cabo en plantas bajas), y conseguir un espacio bajo el vuelo que libera el conjunto del entorno de rigidez marcada por el ensanche.
El edificio intenta respirar de la ciudad y se eleva sumamente sobre ella, consiguiendo ocupar 57 viviendas de 100 m2 ó 228 personas; esto unido el espacio público que se crea debajo, crea mayor libertad de interacción en el desarrollo del resto de piezas a desarrollar.
El voladizo se soporta con una cercha vertical de perfiles de acero, con triangulaciones en todo su volumen, añadiendo una cercha bajo el parking protegida de hormigón, que servirá de antivuelco por el gran momento que se produce en la base, La segunda pieza se conforma de dos volúmenes iguales separados por un corredor amplio de acceso a las viviendas, manteniendo la altura del example, pero liberándose en el interior. La tercera pieza completa el programa con un pequeño volumen que sirve de elemento de relación entre las dos piezas principales, y da cierta horizontalidad al último elemento a unir. Este volumen se dedica al uso empresarial, conformando un grupo de oficinas que miran a espacio libre.
El espacio que se obtiene como público, se configura a nivel de calle, dando acceso al interior de la illa. En la parte central el pavimento se eleva mediante rampas 60 cm, dando una sensación al individuo de sentirse protegido del entorno urbano, sobre todo por la incorporación de dos árboles de mediano tamaño que incorporan una porción verde en la plaza. Bajo los pisos del bloque se sitúan los locales comerciales y el acceso al bloque de viviendas.
Las terrazas de ambos volúmenes principales son de uso común, y se consigue un aprovechamiento del suelo urbano a diferentes niveles.
